New Houses

Three New Builds in Sevenoaks London
Luxury Modern, impeccable design and detail
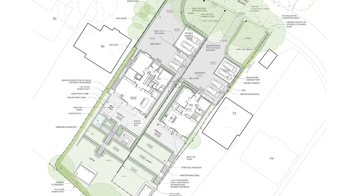
Three Luxury New Build Houses on a Premier Private Road Sevenoaks London.
Two ready for occupation (Q3) 2024
88 Oakhill – over 8000 sqft, 90 Oakhill over 5000sqft and Open Air School all with beautiful designer interiors and meticulously
Luxury modern design & detail
88 Oakhill
Bedrooms
Bedrooms
4
Bathrooms
Bathrooms
2
Area
Area
8,000 sq. ft





